Apartment 171 Amsterdam

Project Type: Redesign, Interior

Location: Amsterdam Zuidoost, The Netherlands

Year: 2024

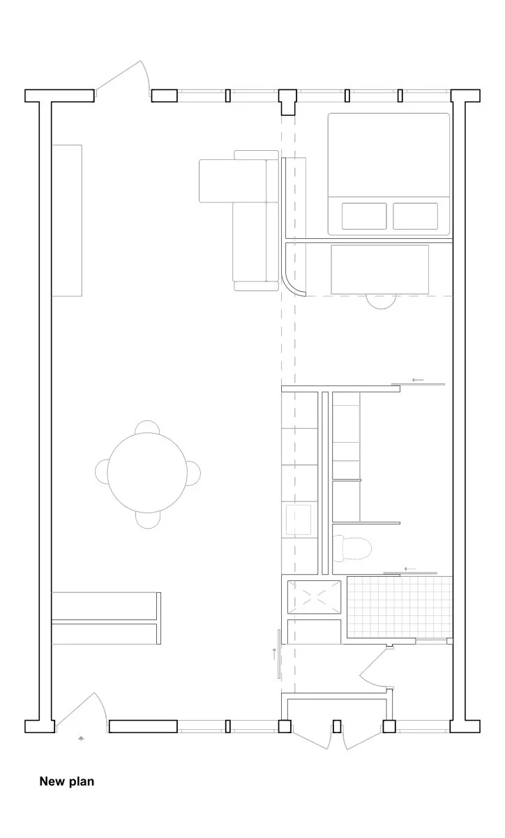
Located in Amsterdam Zuidoost, this apartment's renovation revolves around meeting the residents' needs. The focus is on creating an open, adaptable space that illustrates simplicity and functionality, a significant departure from its original layout as a typical elongated apartment, where rooms remained underutilized for most of the day.

The redesign involves removing partition walls and introducing a new layout that maximizes the space's potential throughout the day. The aim is to promote seamless movement and multipurpose use, allowing every corner to be fully utilized.

With a minimalist approach and a reduction in distracting elements, the design promotes mental clarity and a sense of calm, enabling residents to fully engage with their environment and daily activities in a professional and streamlined manner. The exposed concrete accent in the essential construction elements emphasizes the history of the building.

Previous
Previous

Social Housing

Next
Next

De Lepelaar